Под легкое производство в центре
Стоимость аренды
340000
руб./месяц
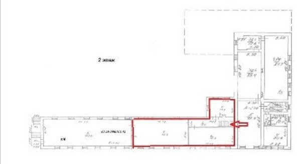
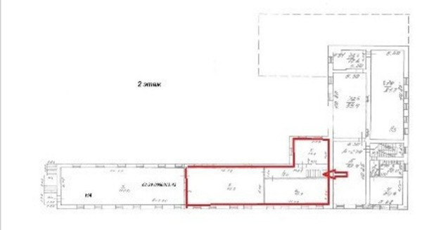
Арт. 127666610 В центральной части города на ул.1-е Бутырки , д.3 предлагается в аренду для размещения "легкого" производства помещение общей площадью 676 кв.м. с отдельным входом в отдельно стоящем здании. Независимый доступ 24/7.
Технические характеристики и описание :эл.мощность -150 кВт помещение расположено на двух этажах: площадь первого этажа -520 кв.м., площадь второго -156 кв.м. 2 входа : центральный с ул. 1-е Бутырки и второй вход (зона погрузки) со стороны ул.Семинарская. Возможен подьезд малотоннажного транспорта, не фуры. высота потолков : первый этаж -3 м., второй этаж -2,6 м. 3 "мокрые точки" на первом этаже (зона с/у оборудована), индивидуальное отопление (своя газованя котельная), вода холодная, горячая планировка и ремонт : выполнен косметический ремонт, есть отдельные кабинеты под офисы с окнами, возможна перпланировка помещения. Стоимость аренды: 500 р./кв.м +коммунальные платежи Ищете помещение c ремонтом для размещения своего производства (швейного, сборочного, обувного и пр.)? Нужно отдельно-стоящее здание и электрическая мощность свыше 40 квт? Звоните! #8894897# Общая стоимость: 340000 руб./месяц Этаж/этажность: 1/2 Агентам: Не звонить |
2182158 11 Декабря 2025 просмотров 11 |
Добавить комментарий
Похожие объявления

















