Сдам помещение
Стоимость аренды
138000
руб./месяц
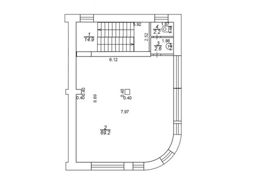
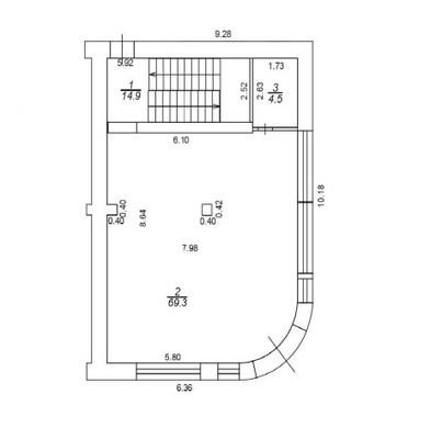
Сдается отдельно стоящее 3 этажное здание в центре города. Центр города, 1 Линия, дизайнерский ремонт ,витражное остекление, вентиляция, кондиционирование, высокая эл. мощность 43 кВт, профессиональная вытяжная система, пожарная и охранная сигнализация, видеонаблюдение, высокий пеший и автомобильный трафик, бесплатная парковка. остановка общественного транспорта100 м. Ранее в здании находилась общепит кондитерская " ШОКОЛАДНИЦА" Помещение подходит под: Кафе, Ресторан, Пиццерию, Торговлю, Офис в центре города с планировкой Open Space ( 1,2 и цокольный этажи). БЕЗ КОМИССИИ. Контактное лицо: Роман
Арт. 122467843 #8886433# Общая стоимость: 138000 руб./месяц Этаж/этажность: 1/3 Агентам: Не звонить |
2179488 24 Октября 2025 просмотров 1 |
Добавить комментарий
Похожие объявления






















