Под офис/салон в центре города
Цена продажи
12000000 руб.
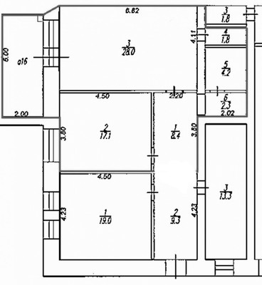
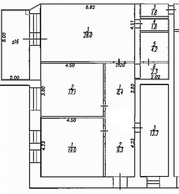
Арт. 126791383 В историческом центре г. Рязани на ул.Свободы д.4 предлагается к продаже нежилое помещение, расположенное на первом этаже 7-ми этажного жилого дома, площадь помещения- 113,4 кв.м. с отдельным входом со стороны ул.Затинная. Входная группа расположена с торца дома.
Транспортная и пешеходная доступность локации, наличие исторических достопримечательностей в сочетании с офисными центрами в радиусе 500 м., позволяет рассматривать покупку данного помещения как перспективное вложение в свой или арендный бизнес. Технические характеристики: высота потолков-3 м., кабинетная планировка с окнами, выполнен качественный косметический ремонт, оборудован с /у, индивидуальное отопление (установлен собственный двухконтурный газовый котел), горячее-холодное водноснабжение,выделенная эл.мощность -19 кВт.Возможна перпланировка за счет некапитальных перегородок. Помещение подходит для размещени офиса, салона красоты, медицинского центра, образовательных проектов. Стоимость помещения : 12.000.000 руб. (Один собственник, без обременений). Ищете помещение для своего бизнеса в центральной части города? Или рассматриваете покупку коммерческой недвижимости как инвестицию на будущее? Звоните! #8892805# Общая стоимость: 12000000 руб./месяц Этаж/этажность: 1/7 Агентам: Не звонить |
2181320 27 Ноября 2025 просмотров 6 |
Добавить комментарий
Похожие объявления

















